Grundpris

0 kr

Leveranstid

14-16 veckor


Välj planlösning

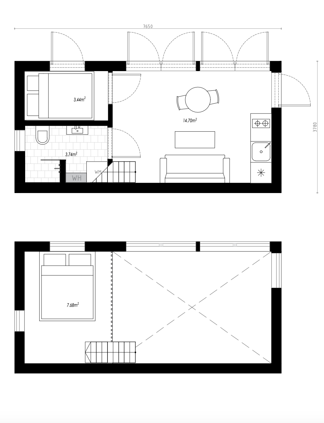
PLANLÖSNING A


Separat rum med kök. Stora öppningsbara fönsterpartier, stort vardagsrum/kök med plats för bäddsoffa. Trappa till loft där det finns plats för bred säng. Badrum med keramiska plattor, LED-belysning, kommod med förvaring och toalett.


PLANLÖSNING B


Separat sovrum. Stora öppningsbara fönsterpartier, stort vardagsrum/kök med plats för bäddsoffa. Trappa till loft där det finns plats för bred säng. Badrum med keramiska plattor, LED-belysning, kommod med förvaring och toalett.



PLANLÖSNING C


Separat basturum. Stora öppningsbara fönsterpartier, stort vardagsrum/kök med plats för bäddsoffa. Trappa till loft där det finns plats för bred säng. Badrum med keramiska plattor, LED-belysning, kommod med förvaring och toalett.

Fasad & Tak

Spröjsade fönster

Pergola

Fasadpanel

Innervägg & takbeklädnad

Fönster/dörr

Plåtdetaljer och hängrännor

Val av tak

Fasadbelysning

Powered by NEX-Forms
Selected Image