Louise 30 Classic
grundpris

0 kr

Standard
leveranstid

14-16 veckor


Välj planlösning

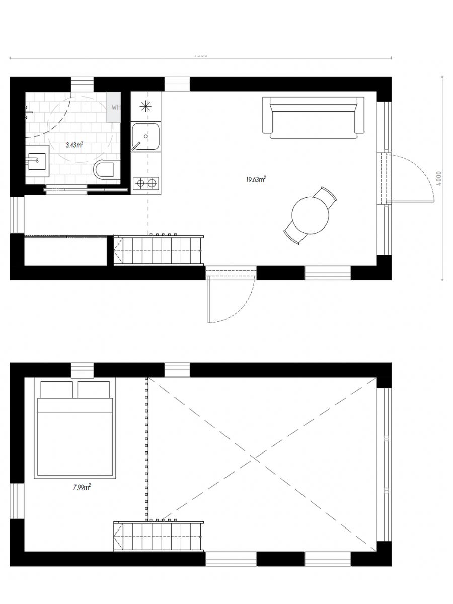
PLANLÖSNING A


Öppningsbar balkongdörr, stort vardagsrum/kök med plats för bäddsoffa. Tiltbar stege till loft. Lyxigt badrum med keramiska plattor, spegel med LED-belysning, komod med förvaring och toalett. På loft finns plats för en bred säng.


PLANLÖSNING B


Stora skjutbara glaspartier. Rymligt vardagsrum/kök med plats för bäddsoffa. Bekväm trappa med ståhöjd på loftplattformen som leder till stort loft (går att lägga till inbyggd garderob under trappan). Lyxigt badrum med keramiska plattor, spegel med LED-belysning, komod med förvaring och toalett. På loft finns plats för en bred säng.



PLANLÖSNING C


Stora skjutbara glaspartier. Rymligt vardagsrum/kök med plats för bäddsoffa. Bekväm trappa som leder till stort loft med ståhöjd på loftplattformen (går att lägga till inbyggd garderob under trappan). Lyxigt badrum med keramiska plattor, spegel med LED-belysning, komod med förvaring och toalett. På loft finns plats för en bred säng. Separat sovrum med skjutdörrar och dubbelsäng.

Fasad & Tak

Fasadpanel

Innervägg & takbeklädnad

Fönster/dörr

Plåtdetaljer och hängrännor

Val av tak

Fasadbelysning

Powered by NEX-Forms
Selected Image