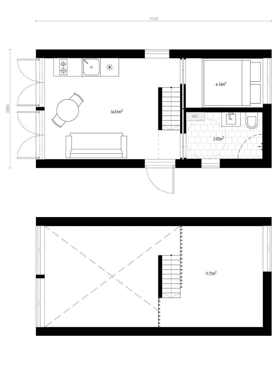
Thank you for connecting with us. We will respond to you shortly. 11https://byggaren.husteamet.se/wp-content/plugins/nex-formsfalsehttps://byggaren.husteamet.se/wp-admin/admin-ajax.phphttps://byggaren.husteamet.se/attefallshus/maria-30yes1fadeInfadeOut .Charlotta 30+810 000 SEKMaria 30grundpris0 kr Standardleveranstid14-16 veckor Välj planlösningPLANLÖSNING AÖppningsbar balkongdörr, stort vardagsrum med plats för bäddsoffa och separat kök. Stege till loft. Lyxigt badrum med keramiska plattor, spegel med LED-belysning, komod med förvaring och toalett. På loft finns öppningsbart triangelfönster och plats för dubbelsäng.PLANLÖSNING BStora glaspartier med dubbla öppningsbara balkongdörrar, stort vardagsrum/kök med plats för bäddsoffa. Smart, dold trappa till loftet med plats för garderob under själva trappan. Lyxigt badrum med keramiska plattor, spegel med LED-belysning, komod med förvaring och toalett. På loft finns öppningsbart triangelfönster och plats för dubbelsäng. Separat sovrum med skjutdörr och plats för dubbelsäng..Planlösning A (Ingår i grundpris).Planlösning A - Spegelvänd(Ingår i grundpris).Planlösning B+50 000 SEK.Planlösning B - Spegelvänd+50 000 SEKHusstorlek.30 m2 - Standardutförande.40 m2 +240 000 SEK (Nu 50% rabatterat)Fasad & Tak.Akrylmålad vit - NCS S 0500-N(Ingår i grundpris).Akrylmålad grå - NCS S4000+9 600 SEK.Lasyrmålad svart - NCS RAL 9005+9 600 SEK.Akrylmålad faluröd - NCS S 5040-Y80R+9 600 SEK.Thermo wood+25 995 SEK.Sibirisk lärk+26 995 SEK.Bränd borstad träpanel+24 995 SEK.Valfri kulör+15 800 SEKFasadpanel.Liggande fasadpanelIngår i grundpris.Stående fasadpanel+5 900 SEKInnervägg & takbeklädnad.Vitlaserad massiv träpanel stående (Ingår i grundpris).Vitlaserad massiv träpanel liggande(Ingår i grundpris).Vitmålad massiv träpanel stående+9 500 SEK.Vitmålad massiv träpanel liggande+9 500 SEK.Vit MDF 600 mm+24 000 SEK.Laserat massiv trä, stående+9 500 SEK.Laserat massiv trä, liggande+9 500 SEKFönster/dörrMaterial fönster/dörr.Underhållsfria isolerfönster, PVC, UV 0,9 (Ingår i grundpris).Isolerglasfönster i trä, UV 0,9 +50 400 SEK.Isolerglasfönster i Trä/Aluminium, UV 0,9 +67 700 SEKFärgval fönster.Vit med vit insida (Ingår i grundpris).Svart med vit insida+11 000 SEK.Röd med vit insida+11 000 SEK.Grå med vit insida+11 000 SEKDörrval.Ytterdörr i trä (Ingår i grundpris).Ytterdörr i glas +9 300 SEK.Ytterdörr klassisk +9 600 SEKDörrfärgVit (Ingår i grundpris)Grå +4 900 SEKSvart +4 900 SEKEgen färg +6 500 SEKSpröjsade fönster.Ej valt(Ingår i grundpris).Ja+9 700 SEKPlåtdetaljer och hängrännor.Vit.Svart.Röd.GråVal av tak.Svart falsat plåttak(Ingår i grundpris).Grått falsat plåttak(Ingår i grundpris).Rött falsat plåttak(Ingår i grundpris).Förberett för sedum+29 000 SEKFasadbelysningFärg på armatur.Vit, 3 st ingår.Svart, 3 st ingårExtra armaturer(3 st ingår i grundpris)Ej valt1 st extra +1 600 SEK2 st extra +3 200 SEK3 st extra +4 800 SEKGå vidare Utseende på kökBASUTRUSTAT KÖK 180 CMInbyggt bänkkylskåp med frysfack, två induktionsplattor, ugn,diskho, blandare, bänkbelysning, fläkt, laminatbänkskiva och eluttag.UPPGRADERAT KÖK, 200 CMInbyggt Electrolux kyl 160 l med frys (57 l), ugn, två induktionsplattor, spisfläkt, diskho, blandare, laminatbänkskiva, LED-belysning, eluttag och extra förvaringslådor.PREMIUMKÖK, 200 CMElectrolux kyl 160 l med frys (57 l), kombinerad ugn/micro, två induktionsplattor, spisfläkt, underlimmad diskho, stänktskydd i glas, komposit stenbänkskiva, LED-belysning, eluttag och extra förvaringslådor..Vitt basutrustat kök(Ingår i grundpris).Grått basutrustat kök(Ingår i grundpris).Vitt uppgraderat kök+27 900 SEK.Grått uppgraderat kök+27 900 SEK.Oak uppgraderat kök+27 900 SEK.Vitt fiskbensmönster premium+39 600 SEK.White gladstone oak premium+39 600 SEK.Truffle brown premium+39 900 SEK.Green oak premium+39 900 SEKDiskmaskin*Illustrativ bild.Ej valt.Ja +10 500 SEKGå tillbakaGå vidare Utseende på badrumFullt utrustat badrum enligt svenska BKR-regler. Kvalitets kakel och klinker. Välj till premium för större plattor och mer lyxig känsla..Vita keramiska plattor(Ingår i grundpris).Gråa keramiska plattor+15 500 SEK.Premium Gray Rock keramiska plattor+15 500 SEKBadrumsskåp.Vit, tvättställsskåp(Ingår i grundpris).Antracit grå, tvättställsskåp med spårad panel+6 900 SEK.Vit, tvättställsskåp med spårad panel+6 900 SEK.Tvättställsskåp i bok+8 700 SEKDuschväggar.Ej valt.Rundade duschväggar+8 900 SEK.Vikbara duschväggar+11 900 SEKToalett.Golvmonterad toalett(Ingår i grundpris).Vägghängd toalett+10 300 SEK.Förbränningstoalett+59 500 SEKSkåp för varmvattenberedareInbyggnation av varmvattenberedare och plats för tvättmaskin.Ej valt.Vitt skåp+11 900 SEK.Antracitgrått skåp+11 900 SEKEluppvärmd handdukstork med termostat.Ej valt.Vit+5 900 SEK.Grå+5 900 SEK.Svart +6 900 SEKTillval i badrum*Illustrativ bildGolvvärme med LCD-termostat i badrum.Ej valt.Ja +11 800 SEK*Illustrativ bildTvättmaskin.Ej valt.Förberett för egen tvättmaskin +4 900 SEK.LG kombinerad torktumlare/tvättmaskin +14 300 SEKGå tillbakaGå vidare Golv.Standard Natur Laminat(Ingår i grundpris).Laminat Natur Oak, premium+10 400 SEK.Laminat Valnöt, premium+10 400 SEK.Laminat White Wash, premium+10 400 SEK.3-stavsparkett i ek+17 600 SEK.Natural oak blues parkett, premium+26 900 SEK.Arizona walnut parkett, premium+26 900 SEK.Gray harmony white wash parkett, premium+26 900 SEKUppvärmning.Slimmade elelement med termostat(Ingår i grundpris).Värmegolv+25 200 SEKVal av ventilation.Från och tilluftsdon(Ingår i grundpris).Mekanisk ventilation+9 700 SEK.Vent med värmeåtervinning+16 800 SEKTillval för uppvärmning*Illustrativ bildAC/Luftvärmepump.Ej valt.Förberedelse för egen värmepump med dolda rördragningar +8 900 SEK.Värmepump Electrolux Avalanche med dolda rördragningar +29 500 SEKGå tillbakaGå vidare BelysningVälj typ av grundbelysningI grundutförandet ingår generöst med LED-spotlights i alla rum.Välj till Deluxbelysning för en jämnare och mysigare känsla..Grundbelysning med spotlight i alla rum(Ingår i grundpris).Deluxbelysning, LED-skena i taket runt om med 2 dimmer+14 500 SEKÖvriga tillval*Illustrativ bildDörrbromsEntrébroms.Ja (Ingår i grundpris).Ej valt*Illustrativ bildEntrétak pergola.Ej valt.Ja+11 500 SEK*Illustrativ bildInbyggd garderob under trapp.Ej valt.Ja+11 900 SEK*Illustrativ bildFrostsäkert vattenutkast, GustavsbergExteriör.Ej valt.Ja +7 900 SEKNimly PRO touch digitallåsEntrédörr.Ej valt (Standard ASSA-lås ingår).Nimly PRO touch digitallås+6 600 SEK.Nimly PRO touch digitallås med fjärrstyrning+8 400 SEK*Illustrativ bildTerass, gran, 15kvm (plint kostnad tilkommer).Ej valt.Ja +29 000 SEK*Illustrativ bildAntal extra eluttag inomhusEj valt1 st extra uttag +1 800 SEK2 st extra uttag +3 600 SEK3 st extra uttag +5 400 SEK4 st extra uttag +7 200 SEK5 st extra uttag +9 000 SEK*Illustrativ bildAntal eluttag utomhusEj valt1 st uttag +1 800 SEK2 st uttag +3 800 SEK3 st uttag +5 700 SEK*Illustrativ bildSockel förberett för taklampa.Ej valt.Ja +1 900 SEKGå tillbakaGå vidare Hur planerar ni husgrunden?Pris vid totalentreprenad kan skilja sig mellan regioner.Egen entreprenad.Totalentreprenad från 229 000 SEK*Namn*TelefonPostnummer*MailGatuadressPostort*Adress för uppsättning av husÖnskad leveransÖvriga noteringar Gå tillbakaSkicka in intresseanmälan Powered by NEX-Forms