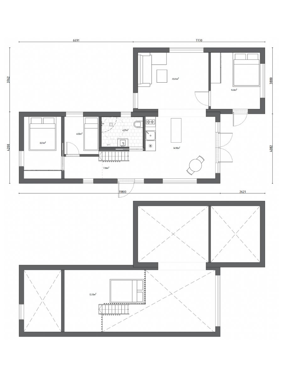
Thank you for connecting with us. We will respond to you shortly. 11https://byggaren.husteamet.se/wp-content/plugins/nex-formsfalsehttps://byggaren.husteamet.se/wp-admin/admin-ajax.phphttps://byggaren.husteamet.se/fritidshus/felix-80yes1fadeInfadeOut .Felix 80+1 899 000 SEKFelix 80grundpris0 kr Standardleveranstid15-17 veckor Välj planlösningPLANLÖSNING AStora öppningsbara glaspartier. Rymligt vardagsrum och kök som går i fil. Bekväm trappa som leder till loft (går att lägga till inbyggd garderob under trappan). Hydro isolerat badrum med keramiska plattor, spegel med LED-belysning, komod med förvaring och en toalett. Tre rymliga sovrum eller arbetsrum som sträcker sig hela vägen upp till nocken. Möjlighet att inreda med våningssäng..Planlösning A (Ingår i grundpris).Planlösning A - Spegelvänd(Ingår i grundpris)Fasad & Tak.Akrylmålad vit - NCS S 0500-N(Ingår i grundpris).Akrylmålad grå - NCS S4000+19 900 SEK.Lasyrmålad svart - NCS RAL 9005+19 900 SEK.Akrylmålad faluröd - NCS S 5040-Y80R+19 900 SEK.Thermo wood+49 000 SEK.Sibirisk lärk+52 200 SEK.Bränd borstad träpanel+52 500 SEK.Valfri kulör+21 000 SEKFasadpanel.Liggande fasadpanelIngår i grundpris.Stående fasadpanel+14 600 SEKInnervägg & takbeklädnad.Vitlaserad massiv träpanel stående (Ingår i grundpris).Vitlaserad massiv träpanel liggande (Ingår i grundpris).Vitmålad massiv träpanel stående+18 000 SEK.Vitmålad massiv träpanel liggande+18 000 SEK.Vit MDF 600 mm+34 000 SEK.Laserat massiv trä, stående+18 000 SEK.Laserat massiv trä, liggande+18 000 SEKPergola*Illustrativ bild.Ej valt.Ja, med pergola +11 900 SEKFönster/ DörrMaterial fönster.Underhållsfria isolerfönster, PVC, UV 0,9 (Ingår i grundpris).Isolerglasfönster i trä, UV 0,9 +68 800 SEK.Isolerglasfönster i Trä/Aluminium, UV 0,9 +85 200 SEKFärgval fönster.Vit med vit insida (Ingår i grundpris).Svart med vit insida+15 500 SEK.Röd med vit insida+15 500 SEK.Grå med vit insida+15 500 SEKDörrval.Ytterdörr i trä (Ingår i grundpris).Ytterdörr i glas +9 300 SEK.Ytterdörr i trä med dekorativt glas +9 800 SEKDörrfärgVit (Ingår i grundpris)Grå +4 900 SEKSvart +4 900 SEKEgen färg +6 500 SEKSpröjsade fönster<input name="fonstersprojsval" type="radio" value="Ej valt (Ingår i grundpris)" id="" style="display: none; font-size: 13px; color: #9e9e9e; background: #ffffff; border-color: #607d8b9c;" autocomplete="disabled" class="the_input_element align_left form-control">.Ej valt (Ingår i grundpris).Ja, med spröjs+16 600 SEKPlåtdetaljer och hängrännor.Vit.Svart.Röd.GråVal av tak.Svart falsat plåttak(Ingår i grundpris).Grått falsat plåttak(Ingår i grundpris).Rött falsat plåttak(Ingår i grundpris).Förberett för sedum+68 000 SEKFasadbelysningFärg på armatur.Vit, 3 st ingår.Svart, 3 st ingårExtra armaturer(3 st ingår i grundpris)Ej valt1 st extra +1 600 SEK2 st extra +3 200 SEK3 st extra +4 800 SEKGå vidare Utseende på kökBASUTRUSTAT KÖK 200 CMInbyggt Electrolux kyl 160 l med frys (57 l), ugn, två induktionsplattor, spisfläkt, diskho, blandare, laminatbänkskiva, LED-belysning, eluttag och extra förvaringslådor.UPPGRADERAT KÖK, 200 CM MED KÖKSÖInbyggt Electrolux kyl 160 l med frys (57 l), ugn, fyra induktionsplattor, spisfläkt, diskho, blandare, laminat bänkskiva, LED-belysning över diskbänk, eluttag och 120 cm köksö med förvaring.PREMIUMKÖK, 200 CM MED KÖKSÖInbyggt Electrolux kyl 160 l med frys (57 l), ugn/micro, fyra induktionsplattor, spisfläkt, blandare, bänkskiva i sten med underlimmad diskho, stänkskydd i glas, LED-belysning över diskbänk, eluttag, 120 cmköksö med förvaring..Vitt basutrustat kök(Ingår i grundpris).Grått basutrustat kök(Ingår i grundpris).Vitt uppgraderat kök+49 900 SEK.Grått uppgraderat kök+49 900 SEK.Oak uppgraderat kök+49 900 SEK.Vitmålade massiva luckor med fiskbensdekor (Premiumkök med köksö)+79 900 SEK.Phantone-gröna luckor med överskåp i Lugano-asp (Premiumkök med köksö)+79 900 SEK.Ljus Lugano-asp i högtrycks laminat med överskåp (Premiumkök med köksö)+79 900 SEK.Lava gray med överskåp i massivt gråmålat trä (Premiumkök med köksö)+79 900 SEKExtra förvaringsskåp.Endast grundförvaring(Ingår i grundpris).Ja, premiumförvaring+13 900 SEKDiskmaskin*Illustrativ bild.Ej valt.Ja +11 500 SEKGå tillbakaGå vidare Utseende på badrumFullt utrustat badrumEnligt svenska BKR-regler. Kvalitets kakel och klinker. Välj till premium för större plattor och mer lyxig känsla..Vita keramiska plattor(Ingår i grundpris).Gråa keramiska plattor+15 500 SEK.Premium Gray Rock keramiska plattor+15 500 SEKBadrumsskåp.Vit, tvättställsskåp(Ingår i grundpris).Antracit grå, tvättställsskåp med spårad panel+6 900 SEK.Vit, tvättställsskåp med spårad panel+6 900 SEK.Tvättställsskåp i bok+8 700 SEKDuschväggar.Ej valt.Rundade duschväggar+8 900 SEK.Vikbara duschväggar+11 900 SEKToalett.Golvmonterad toalett(Ingår i grundpris).Vägghängd toalett+10 300 SEK.Förbränningstoalett+59 500 SEKSkåp för varmvattenberedareInbyggnation av varmvattenberedare och plats för tvättmaskin.Nej.Vitt skåp+11 900 SEK.Antracitgrått skåp+11 900 SEKEluppvärmd handdukstork med termostat.Ej valt.Vit+5 900 SEK.Grå+5 900 SEK.Svart +6 900 SEKTillval i badrum*Illustrativ bildGolvvärme med LCD-termostat i badrum.Ej valt.Ja +11 800 SEK*Illustrativ bildTvättmaskin.Ej valt.Förberett för egen tvättmaskin +4 900 SEK.LG kombinerad torktumlare/tvättmaskin +14 300 SEKGå tillbakaGå vidare Golv.Standard Natur Laminat(Ingår i grundpris).Laminat Natur Oak, premium+30 100 SEK.Laminat Valnöt, premium+30 100 SEK.Laminat White Wash, premium+30 100 SEK.3-stavsparkett i ek+44 300 SEK.Natural oak blues parkett, premium+64 400 SEK.Arizona walnut parkett, premium+64 400 SEK.Gray harmony white wash parkett, premium+64 400 SEKUppvärmning.Slimmade elelement med termostat(Ingår i grundpris).Värmegolv+49 200 SEKVal av ventilation.Från och tilluftsdon(Ingår i grundpris).Mekanisk ventilation+12 700 SEK.Vent med värmeåtervinning+23 700 SEKTillval för uppvärmning*Illustrativ bildAC/Luftvärmepump.Ej valt.Förberedelse för egen värmepump med dolda rördragningar +8 900 SEK.Värmepump Electrolux Avalanche med dolda rördragningar +29 500 SEKGå tillbakaGå vidare BelysningVälj typ av grundbelysningI grundutförandet ingår generöst med LED-spotlights i alla rum.Välj till Deluxbelysning för en jämnare och mysigare känsla..Grundbelysning med spotlight i alla rum(Ingår i grundpris).Deluxbelysning, LED-skena i taket runt om med 2 dimmer+18 200 SEKÖvriga tillval*Illustrativ bildEntrétak i glasHuvudentré.Ej valt.Ja+9 500 SEK*Illustrativ bildEntrétak pergolaHuvudentré.Ej valt.Ja+11 900 SEK*Illustrativ bildGarderob med skjutdörrFull takhöjd.Ej valt.Ja +12 900 SEK*Illustrativ bildFrostsäkert vattenutkast, GustavsbergExteriör.Ej valt.Ja +7 900 SEKNimly PRO touch digitallåsEntrédörr.Ej valt (Standard ASSA-lås ingår).Nimly PRO touch digitallås+6 600 SEK.Nimly PRO touch digitallås med fjärrstyrning+8 400 SEKBraskamminFullinstallerad med skorsten.Ej valt.Ja +69 000 SEK*Illustrativ bildAntal extra eluttag inomhusEj valt1 st extra uttag +1 800 SEK2 st extra uttag +3 600 SEK3 st extra uttag +5 400 SEK4 st extra uttag +7 200 SEK5 st extra uttag +9 000 SEK*Illustrativ bildAntal eluttag utomhusEj valt1 st uttag +1 800 SEK2 st uttag +3 800 SEK3 st uttag +5 700 SEK*Illustrativ bildSockel förberett för taklampa.Ej valt.Ja +1 900 SEK*Illustrativ bildTerass, gran, 15kvm (plint kostnad tilkommer).Ej valt.Ja +29 000 SEK*Illustrativ bildInbyggd garderob under trapp.Ej valt.Ja +17 900 SEKGå tillbakaGå vidare Hur planerar ni husgrunden?Pris vid totalentreprenad kan skilja sig mellan regioner.Egen entreprenad.Totalentreprenad från 399 000 SEK*Namn*TelefonPostnummer*MailGatuadressPostort*Adress för uppsättning av husÖnskad leveransÖvriga noteringar Gå tillbakaSkicka in intresseanmälan Powered by NEX-Forms